Skip To Content

Lot 6A Ravine Road

East Dundee, IL 60118
  • $85,000
  • STATUS: Active
  • ON SITE: 34 Days
  • MLS #: 12487322
UPDATED: 13 min ago
$85,000
  • 0
    BEDS
  • 0.77
    ACRES
  • 0
    BATHS
  • 0
    1/2 BATHS
Neighborhood:
Type:
Vacant Land / Lots
County:
Area:

School Ratings & Info

School District:
300

Description

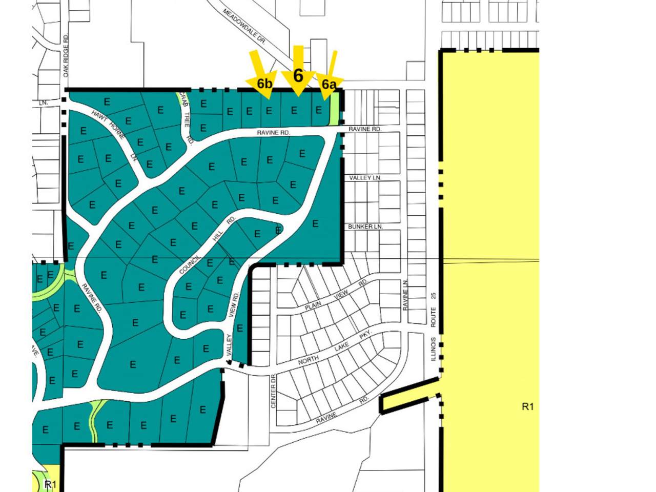
Heavily Wooded .77-Acre Homesite in Lakewood Lodge Estates in East Dundee.***Discover the perfect setting to build your dream home on this .77-acre single-family homesite nestled in the desirable Lakewood Lodge Estates community. Surrounded by mature trees and natural beauty, this property offers privacy and tranquility while still being close to everything East Dundee has to offer.***Located just minutes from vibrant downtown East Dundee, you'll enjoy easy access to a variety of restaurants, boutique shopping, and year-round community events. Outdoor enthusiasts will love being close to the Fox River, scenic bike paths, and numerous recreational amenities including the park district pool, library, and multiple playgrounds. Commuters will appreciate the convenient proximity to I-90 for easy travel throughout the Chicagoland area.***Bring your vision and custom builder to create the home you've always imagined in this sought-after family-friendly neighborhood.***Also available to purchase are the lots on either side - Lot 6 (PIN #0314476005) & 6B (PIN #0314476007). Property photos coming soon!

Monthly Payment Calculator



© 2025 Midwest Real Estate Data LLC. All rights reserved. IDX information is provided exclusively for consumers' personal, non-commercial use and may not be used for any purpose other than to identify prospective properties consumers may be interested in purchasing. Information is deemed reliable but is not guaranteed accurate by MTP, MRED or RE/MAX IMPACT. Based on information submitted to the MRED as of 2025-11-07T11:09:17.39 UTC. All data is obtained from various sources and has not been, and will not be, verified by broker or MRED. MRED supplied Open House information is subject to change without notice. All information should be independently reviewed and verified for accuracy. Properties may or may not be listed by the office/agent presenting the information. Some properties which appear for sale on this website may subsequently have sold and may no longer be available. NOTICE: Many homes contain recording devices, and buyers should be aware they may be recorded during a showing.

Digital Millennium Copyright Act
www.greaterchicagohomesearch.com/homes/168506133
Print Image

Lot 6A Ravine Road East Dundee, IL 60118

  • Price: $85,000
  • Status: Active
  • On Site: 34 Days
  • Updated: 13 min ago
  • MLS #: 12487322
0
Beds
0
Baths
0
½ Baths
0.77
Acres
Neighborhood:
Lakewood Lodge Estates
County:
Kane
Area:
Kane
School District:
300
Property Description
Heavily Wooded .77-Acre Homesite in Lakewood Lodge Estates in East Dundee.***Discover the perfect setting to build your dream home on this .77-acre single-family homesite nestled in the desirable Lakewood Lodge Estates community. Surrounded by mature trees and natural beauty, this property offers privacy and tranquility while still being close to everything East Dundee has to offer.***Located just minutes from vibrant downtown East Dundee, you'll enjoy easy access to a variety of restaurants, boutique shopping, and year-round community events. Outdoor enthusiasts will love being close to the Fox River, scenic bike paths, and numerous recreational amenities including the park district pool, library, and multiple playgrounds. Commuters will appreciate the convenient proximity to I-90 for easy travel throughout the Chicagoland area.***Bring your vision and custom builder to create the home you've always imagined in this sought-after family-friendly neighborhood.***Also available to purchase are the lots on either side - Lot 6 (PIN #0314476005) & 6B (PIN #0314476007). Property photos coming soon!
Exterior Features

Frontage Type City StreetPublic Road Land Wooded Lot Size .50-.99 Acre Parking Total 0 Road Surface Type Asphalt Waterfront YN No

Interior Features

Basement Bathrooms YN No

Property Features

Building On Land No Corporate Limits East Dundee Current Use ResidentialSingle Family Farm No General Information School Bus Service Mls Actual Status Active Ownership Fee Simple Possible Use ResidentialSingle Family Special Listing Conditions None Tax Annual Amount 1219 Tax Year 2024 Township Dundee Type Land Utilities Unknown (verify) Zoning SINGL

Listing information © 2025 Midwest Real Estate Data LLC.
Listing provided courtesy of Compass: 224-699-9499.


© 2025 Midwest Real Estate Data LLC. All rights reserved. IDX information is provided exclusively for consumers' personal, non-commercial use and may not be used for any purpose other than to identify prospective properties consumers may be interested in purchasing. Information is deemed reliable but is not guaranteed accurate by MTP, MRED or RE/MAX IMPACT. Based on information submitted to the MRED as of 2025-11-07T11:09:17.39 UTC. All data is obtained from various sources and has not been, and will not be, verified by broker or MRED. MRED supplied Open House information is subject to change without notice. All information should be independently reviewed and verified for accuracy. Properties may or may not be listed by the office/agent presenting the information. Some properties which appear for sale on this website may subsequently have sold and may no longer be available. NOTICE: Many homes contain recording devices, and buyers should be aware they may be recorded during a showing.

Digital Millennium Copyright Act
 
https://bt-photos.global.ssl.fastly.net/mred/1280_boomver_1_12487322-1.jpg
Logo
RE/MAX IMPACT
900 S. State Street Suite B
Lockport IL, 60441